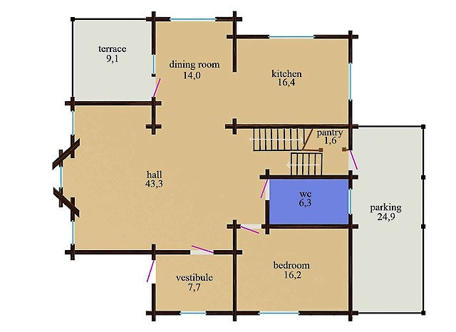
|  | Деревянный дом "Мексика" из оцилиндрованного бревна на земельном участке под Минском    проект 194 м² 00.00.0000  Дом из оцилиндрованного круглого бревна на земельном участке под Минском — элитный проект 194 м² Проект элитного дома из оцилиндрованного бревна с баней и парковкой для автомобиля разрабатывался в соответствии с запросами взыскательных потребителей. Здесь есть все, что необходимо для создания полноценного комфортного проживания. Вместительный, уютный загородный деревянный дом из сухого бревна, для дружного семейства. Представленной планировкой дома, архитектор воплотил замысел практичного и эстетичного жилища. На первом этаже дома, располагается просторная гостиная.   Её близкое расположение к выходам на улицу, примыкание к столовой, кухне и санузлу без коридоров делает перемещение отдыхающих по "стратегическим пунктам" максимально быстрым, а пребывание в зоне отдыха - максимально комфортным. На 194 м² общей площади размещаются жилые и вспомогательные комнаты, помещения. Попасть в дом с парковки можно через кладовую, которая граничит с лестницей, ведущей на второй этаж или через парадное крыльцо. Второй этаж представлен холлом, санузлом и четырьмя комнатами, которые можно использовать как спальни, детские или организовать в некоторых из них рабочее пространство для кабинета, библиотеки или тренажерного зала. Для любителей трапезы на свежем воздухе приятным дополнением к плану дома станет терраса. 
                 Дом из оцилиндрованного круглого бревна Если вас заинтересовала представленная информация или вы не нашли нужный товар или услугу, пожалуйста, позвоните или отправьте запрос на консультацию: Ещё из раздела Дома из бревна |